Мэрия Челябинска потратит 13,5 млн рублей на новый конференц-зал
В здании администрации Челябинска отремонтируют зал, где проходят заседания гордумы и аппаратные совещания. Последний раз там что-то менялось в прошлом десятилетии, при сити-менеджере Сергее Давыдове.
Помещение на третьем этаже здания на площади Революции ожидает капитальная реконструкция: подрядчику предстоит демонтировать все, что там сейчас находится, от подвесного потолка до паркета, плинтусов и оснований напольного покрытия, после чего натянуть новые потолки, отделать стены декоративной штукатуркой и постелить ламинат, а также смонтировать новые системы отопления, электроснабжения, освещение и декоративные элементы интерьера — настенные часы, герб Челябинска и надписи из золотистых букв.

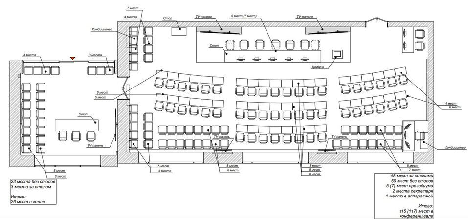
Конференц-зал будет обставлен новой мебелью — техзадание включает закупку пяти светлых кожаных кресел и стола для президиума, а также столов и кресел из экокожи в зале и пресс-руме — всего около 200 предметов мебели. Ориентация зала будет изменена с продольной на поперечную: если раньше президиум находился сбоку от окон, то теперь он будет располагаться напротив них, а депутаты и чиновники — сидеть спиной. Чтобы солнце не слепило сидящих в президиуме, предусмотрены блэкаут-шторы.
Рендеры дизайн-проекта также включают ТВ-панели и трибуну с мультимедийным комплексом, однако телекоммуникационное оборудование в техзадании не указано.

На выполнение работ городской бюджет выделяет 13,36 млн руб. Определят исполнителя работ по конкурсу, прием заявок на него продлится до 19 мая, сами торги пройдут 23 числа. Завершить ремонт конференц-зала предстоит в срок до 30 ноября; после завершения предусмотрена гарантия на трехлетний срок. Где будут целых полгода заседать городские депутаты и проходить совещания чиновников мэрии, пока не сообщается.
Ремонтировать в здании администрации будут не только зал заседаний, но и крышу: на ремонт находящейся в полуаварийном состоянии кровли изначально собирались потратить 8 млн руб., в марте, согласно новому контракту, эта сумма выросла до 9,5 млн. Работы выполняет ООО ПК «Евродом».











