Меню

Проект теннисного центра миллиардера Сергея Студенникова в Челябинске прошел экспертизу

Приблизился к реализации один из компонентов будущего «спортивного города» на северо-западе Челябинска — центр тенниса, инвестором которого выступает владелец сети алкомаркетов «Красное & Белое».

Центр тенниса в Челябинске, который планируется построить в районе Тополиной аллеи получил положительное заключение строительной экспертизы. Проект был одобрен ООО «МАГ Экспертиза», документацию разработал челябинский «Институт информационного моделирования и архитектуры». Заказчиком является ООО «Мистраль», принадлежащее Сергею Студенникову — миллиардеру, владельцу сети алкомаркетов «Красное & Белое».

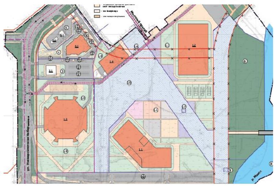
Комплекс будет расположен на пересечении Университетской Набережной и улицы Академика Королева — неподалеку от уже строящейся «РМК Арены». Как ранее сообщал CHEL.DK.RU, его основой станет четырехэтажное здание площадью 15 тыс. кв. метров. На первом этаже расположатся восемь кортов, выше будут раздевалки, спортивный магазин, спа-центр, сауна, массажный кабинет, кафе, административные помещения. На прилегающей территории разместят еще четыре теннисных корта с грунтовым покрытием. За образец при создании проекта брали «Академию тенниса» в Екатеринбурге.

 

Впервые о проекте стало известно в сентябре 2021 года. Тогда объем инвестиций в проект оценивался в 1 млрд руб. — в бизнес-плане особо оговаривалось, что Сергей Студенников вложит в строительство центра тенниса свои личные средства. Первоначально объект планировалось сдать к концу 2024 года, нынешние подробности проекта и сроки его реализации не раскрываются.

Пока же ООО «Мистраль» готовится строить в Челябинске новый офис сети «Красное & Белое». Семиэтажное здание появится в частном секторе в другой части северо-запада — в Колхозном поселке. Несмотря на протесты жителей и скандалы на публичных слушаниях, проект застройки был одобрен градостроительной комиссией и был утвержден главой города Натальей Котовой.