В мэрии рассказали, как преобразят парк на северо-западе Челябинска
Гамаки, искусственный холм, питьевые фонтанчики: каким должно быть, сколько будет стоить и когда завершится обновление «морально устаревшего» сквера на Университетской набережной?
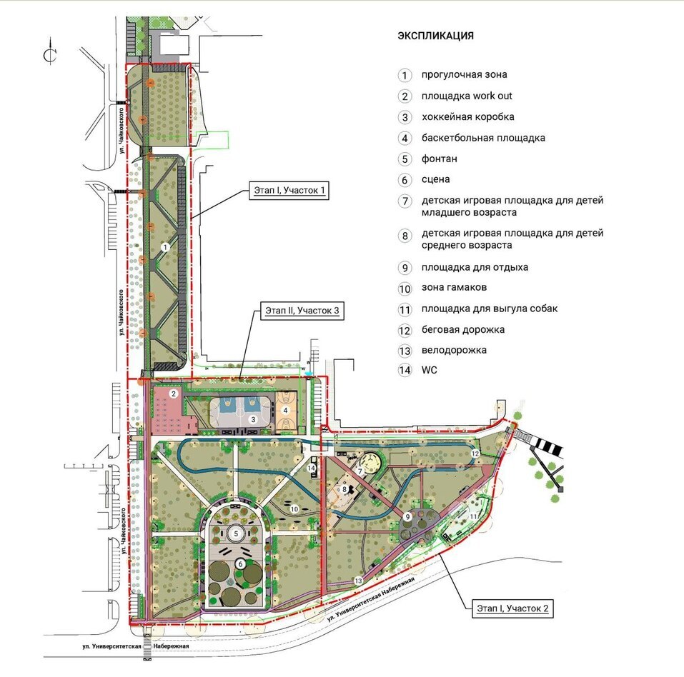
Уже в апреле подрядчики городской администрации должны приступить к завершающему этапу благоустройства так называемого «ПКиО Калининского района»: сквера на перекрёстке Университетской набережной и улицы Чайковского. Как сообщают в пресс-службе мэрии, работы обойдутся бюджету в 19,3 млн руб. и будут заввершены уже в июле 2023 г.
В рамках существующей структуры сквера, построенного 20 лет назад, но с тех пор, по выражению властей, «морально устаревшего», будут выделены зона отдыха с шезлонгами и гамаками, детские площадки, сцена и фудкорт.
Также в парке должны освежить освещение, оборудовать беговую и велосипедную дорожки, высадить новые деревья, а в центральной части — обустроить искусственный холм. Также в парке обещают запустить давно неработающий фонтан, а на его территории — установить питьевой фонтанчик.

Отдельно подчёркивается, что обновлённое пространство оборудуют видеокамерами — в том числе ради защиты благоустройства от вандалов.
Прошлой осенью подрядчики закончили работы на соседнем участке благоустройства: к слову, работы явно меньшего масштаба обошлись челябинскому бюджету в 21 млн руб.










