Челябинская утопия: как нам обустроят парк Гагарина?
Власти города выделили 33 млн рублей на проект реконструкции парка Гагарина, который (возможно) будет базироваться на интереснейшем исследовании по итогам работы группы соучаствующего проектирования.
Муниципальная управляющая компания ЦПКиО имени Гагарина начала поиск подрядчика для комплексного проектирования территории парка. Начальная цена контракта составляет 33 млн руб.: напомним, именно столько ранее мэр города пообещала выделить на эти цели из городского бюджета.
К технической документации закупки прилагаются рекомендации для эскизной концепции благоустройства, составленные по итогам общественного обсуждения проекта в начале 2021 г. Обширное исследование на 200 страницах, собравшее множетсво исторических справок, идей и мнений, заслуживает отдельного внимательного изучения. Мы приведём лишь отдельные выдержки из него.
В ходе большого соцопроса были выделены такие проблемы парка, как несовременные аттракционы и капитальные постройки (входная группа, фонтаны, сцена), труднодоступность санитарной инфраструктуры (туалетов и урн), «озаборенность» пространства, разрозненность и однообразие точек общепита, неухоженность зелёных зон.
Топ возможностей, которые, по мнению жителей, должны быть реализованы после обновления парка — культурно отдохнуть в парке на берегу карьера (56%), найти занятие для ребенка любого возраста (53%), без проблем поесть на природе (51%). Первую тройку самых востребованных услуг в парке возглавляют кафе и киоски с едой (67%), далее идут летний кинотеатр (63%) и новые детские аттракционы (56%).
После глобального опроса девять групп горожан провели «мозговые штурмы» соучаствующего проектирования, в ходе которых представили девять целостных сценариев досуга в ЦПКиО.
- Сценарий «Парк впечатлений» подразумевал оборудование на разных точках парка локаций с интерактивным погружением в историю, от первобытной жизни до эпохи виртуальной цифровой реальности.
- «Кухня-Парк» — создание уникальных гастрономических локаций, проведение фестивалей домашней еды, пельменей и других сезонных продуктов.
- «Три века Челябинска» — восстановление разрушенной культбазы в стиле конструктивизм, парашютной вышки, развлечения и локации в стиле 1930-х — 1940-х или ХIX века.
- «Центральный парк Физкультуры и Долголетия»— расширение существующих лыжероллерных трасс, оборудование вышки для роупджампинга, площадок для спортивных практик, игры в петанк, шахматы и т.д.
- «Парк детского периода» — создание новых площадок для отдыха, развлечения и обучения детей старшего возраста, развивающих зон для самых маленьких, клубов для мам и пап, релакс-территорий для всей семь и молодёжи, «аптекарского огорода».
- «Инстапарк» — единый дизайн-код парка в эко-стиле, ремонт капитальных построек, обновление и удлинение детской ж/д дороги, реконструкция зоопарка, ккостюмированные мероприятия, вернисажи местных художников.
- «Парк разума» — оборудование планетария, площадки для интеллектуальных игр и познавательных интерактивов.
- «Парк релаксации» — крытые велопарковки на входе в парк, рабочие зоны с розетками на всей его территории, благоустройство существующей инфраструктуры, оборудование зимней оранжереи.
- «Парк танца и музыки» — музыкальные аттракционы и инсталляции, «аллеи звёзд», танцевальные фестивали, караоке-вагоны на детской железной дороге и памятник плохому танцору.




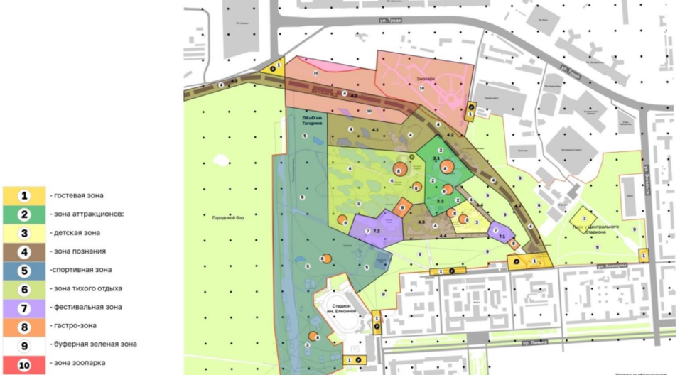
Несложно увидеть, что такие разноформатные концепции между собой подружить довольно сложно, однако в итоговом зонировании присутствуют идеи из всех перечисленных кейс-сессий: воосстановление прашютной вышки, исторические интерактивы на карьерах и детской железной дороге, «космические» и ретро-аттракционы, музыкальные интерактивные игры и гонки на тракторах, «Замок знаний», арт-аллея, новые спортплощадки, оборудование лежаков и освещения, а также ворк-зон вокруг карьеров, новые фудкорты, рестораны и фестивали еды.
Есть лишь один нюанс: всё это было и остается лишь рекомендациями. Проектировщик, которого в итоге наймёт МУП, должен принять их во внимание, но следовать им, согласно техническому заданию, не обязан. Кроме того, стоимость реализации итогового проекта, учитывая размах концептуальных рекомендаций, может оказаться астрономической и очевидно неподъёмной для бюджета Челябинска — поэтому, возможно, какую-то часть этой утопии челябинский бизнес может попытаться воплотить в жизнь своими силами уже сейчас.














