Территорию за бывшей городской свалкой отдадут под застройку в Челябинске

Проект застройки предусматривает возведение домов, детских садов и школы на 1500 мест. Где появится новый микрорайон и какую площадь он займет — подробнее читайте в материале.
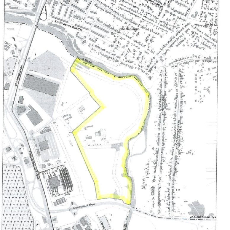
У набережной реки Миасс в границах Металлургического и Курчатовских районов Челябинска построят новый микрорайон. Информация об этом представлена на сайте городской мэрии.
Документация по планировке территории (проект планировки территории с проектом межевания территории) в границах ул. Проектной 1-й, Северного Луча, набережной реки Миасс в Курчатовском и Металлургическом районах города Челябинска по инициативе ООО «Трест Магнитострой», — говорится на сайте мэрии.
В границах территории появятся 23 многоквартирных дома, часть из которых будет включать многоуровневые парковки. Для жильцов будущего района построят детские сады на 400 и 110 мест, котельную, опорный пункт полиции, несколько магазинов, школу на 1500 мест, спортивный комплекс, учреждение дополнительного образования, здание коммерческого делового назначения и несколько трансформаторных подстанций. Площадь застройки составит 52,93 га. Работы будет выполнять компания ООО СЗ «Гефест». Проект завершат к 2029 г.
Компания ООО «Трест Магнитострой» зарегистрирована в январе 2005 г. в Магнитогорске. Директором организации является Андрей Шишкин, который также числится учредителем еще 17 организаций. В их числе: ООО «Имперс», ООО СЗ «Стимул», ООО «Бриф», ООО «Прогресс», ООО Фирма «Мебель» и других. Прибыль магнитогорской строительной компании в 2023 г. составила 5,1 млрд. руб. Среди учредителей ООО «Трест Магнитострой» значится бизнесмен Сергей Лакницкий (брат Олега Лакницкого).
Ранее CHEL.DK.RU рассказывал, что в Металлургическом районе Челябинска возведут новый жилой комплекс в границах улиц Электростальная, Минина, шоссе Металлургов и Пожарского. Общая площадь территории составляет 0,94 га.
Также советуем почитать: Олег Лакницкий: «Восстановление жилья на Донбассе стало для нас испытанием на прочность»
Подписывайтесь на CHEL.DK.RU в Telegram.










