Никольскую рощу в Челябинске превратят в благоустроенный парк аттракционов
На окраине Калининского района Челябинска собираются благоустроить запущенную зеленую зону с репутацией небезопасного места. В Никольской роще появятся лыжероллерная трасса и аттракционы.
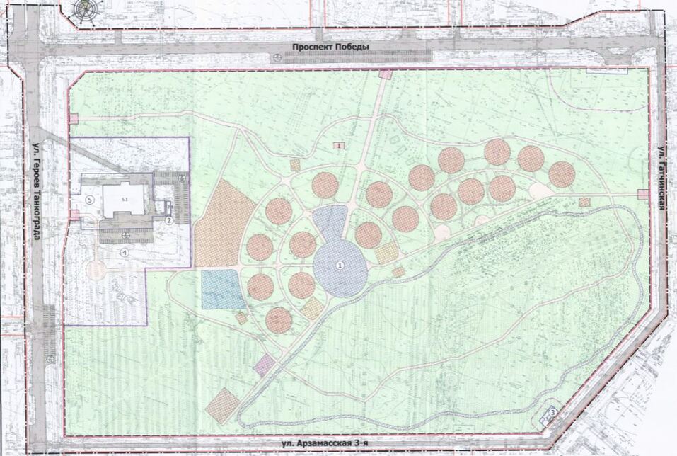
Администрация Челябинска анонсировала публичные слушания по проекту планировки территории в границах проспекта Победы, улиц Героев Танкограда, Гатчинской и Арзамасской 3-й. Она представляет собой зеленую зону, известную челябинцам, как Никольская роща. Ее площадь составляет 45 га.
По опубликованной схеме, в Никольской роще планируется разместить три детские игровые площадки, зону для занятий спортом, проложить лыжероллерную трассу, а также выделить несколько участков под установку аттракционов и «некапитальных объектов экспонирования». Также в будущем парке оборудуют общественные туалеты, пункты проката спортинвентаря и площадку для проведения культурно-массовых мероприятий.
Проект благоустройства территории разработала фирма «ГрадстройПроект» из Санкт-Петербурга. Его детализацию представят 16 февраля в челябинском Доме архитектора.
Уже долгие годы Никольская роща представляет собой запущенное редколесье без какой-либо инфраструктуры, с репутацией небезопасного и криминогенного места. Благоустроен там лишь небольшой участок возле центра детского творчества «Победа». «Природный» ландшафт на поляне в центре рощи — популярное место для проведения фестивалей исторической реконструкции. Планы по благоустройству Никольской рощи за последние несколько лет озвучивались неоднократно — в частности, предлагалось создать там этнографический парк, однако ни один из проектов реализован не был.









